繋がりを育む循環の場
江東区東雲にある工場跡地の再開発事業で整備された共同住居の一部をリノベーションする課題である。
リノベーションにより、新しい空間計画を行った。
コンセプトは
「繋がりを育む循環の場 ~育てることから始まる学びと暮らし~」とした。
東京都江東区東雲は、辰巳駅から徒歩10分、東雲駅から徒歩15分の地にある。
リノベーションの対象は、伊東豊雄氏設計の東雲キャナルコート2街区である。
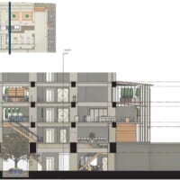
2街区、南側の1階~4階の部分をリノベーションした。
現地調査。キャナルコート全体は1つの街のようにまとまった空間に感じた。当該のエントランスは、ガラス張りで光が入り開かれているように見えているにも関わらず、暗く独立しているように感じた。周辺には街路樹が所々あるが、ビル風が比較的強い。
エントランス周辺でも人々が集まって何かができるような所に見えなかった。
リノベーション計画を次のようにした。
1階にパッシブデザインをとり入れた共用空間に変え、薄暗く閉鎖された印象を変えるため吹き抜けを利用し通る人が広くて明るいと印象を持てるようにした。
また、植栽やカーテンウォールやルーバーを利用し、居心地の良い場所を提供することを目指した。
環境に配慮し、植栽を周囲に配置することで気温の上昇を抑制する。外壁に縦型ルーバー付きのカーテンウォールを配置し、断熱性の向上、自然光の取り入れ明るい空間と同時に日射調整を行い空調負荷の低減を狙った。
この植栽は、「育てることから始まる学びと暮らし」をサブテーマに、既存のバルコニーや付け足したバルコニーで野菜を栽培し、収穫する。その野菜をオープンキッチンで住民同士が料理を行い交流する。子供からお年寄りの料理教室として使うことを想定した。
1階はエントランスが中心となる。児童が朝、集まって集団登校。年配者や母親が集まり、雑談やボードゲームも出来るスペースとした。エントランス前とエントランスの吹き抜け外から見た景色をパースにした。
2階はカフェがメインとなる。2階のフロアレベルから600上がった屋内芝生スペースや西側には大きなカーテンウォールがある。カフェス部分、屋内芝生の部分、内部から外を見たパースです。
3階はオープンキッチンとアトリエルームを設けた。オープンキッチンは、ここで取れた野菜を使い、子供達と一緒に保護者や年配者の料理教室として活用できる。アトリエルームを設けた理由は、このキャナルコートは複数の有名建築家が手がけている。その関係でデザインを学べるスペースがあると良いと思い設けた。
4階はワークスペースがメインとなっている。5階からが住居となるのでできるだけ落ち着いた空間にし、住空間を尊重する緩衝部分とした。
建物の周辺環境を解析した。
今回カーテンウォールを設けたので風圧力の検証を行った。今年の平均気温と平均風速を入れた結果。図の上段がルーバー付きのカーテンウォールの解析になっており、下段がカーテンウォールを一般的な壁とした場合である。ルーバー付きカーテンウォールにする事で、カーテンウォールに対する風圧力やその周辺の風速が抑えられた。更にカーテンウォール内部の解析。西側のカーテンウォールの上部を開放することで、暖かい空気を外導き夏場の室内環境を向上させる。こちらがカーテンウォール上部の空気が外に抜けているシミュレーションの解析です。
南側を水平ルーバー、東西側をたて型ルーバーとして日射調整するのが一般的である。しかし今回は、縦型ルーバーを採用。外部からのプライベート干渉の緩和や日射の軽減、ルーバーの防汚などを期待した。























